Escuela de música

SITUACIÓN:
Sabadell
PROMOTOR:
Ayuntamiento de Sabadell
PROYECTO:
2018
CONSTRUCCIÓN:
2023-2025
SUP.CONSTRUIDA:
2.736,69 m2
P.E.M:
3.011.717,06 €
EQUIPO:
Numatec S.L.

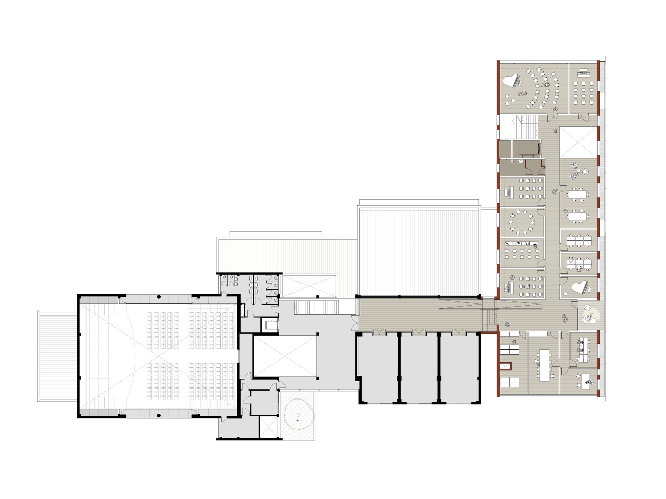
ESCUELA DE MÚSICA EN SABADELL

La Nueva Escuela de Música de Sabadell nace integrada en la ampliación del Centro Cívico de Sant Oleguer, con el objetivo de convertirse en un espacio abierto y vibrante al servicio del barrio.

La fachada principal se resuelve con un muro cortina de vidrio diseñado con criterios bioclimáticos, que maximiza la captación solar en invierno y actúa como regulador térmico en verano. Este frente translúcido no solo funciona como un mecanismo ambiental, sino también como una metáfora visual: los travesaños horizontales recuerdan un pentagrama musical, sobre el que la vida del edificio se despliega como una composición.

Detrás, un muro trombe de hormigón refuerza la eficiencia energética y se articula con perforaciones rítmicas que evocan signos musicales. De este modo, la fachada se convierte en una partitura arquitectónica donde la luz y la sombra juegan el papel de notas.

En el interior, las aulas se organizan de manera compacta y flexible, con especial atención a la acústica y al confort de los usuarios. Los espacios docentes conviven con salas polivalentes abiertas al centro cívico, reforzando la idea de un equipamiento compartido, capaz de generar sinergias culturales.

El resultado es un edificio que une arquitectura, sostenibilidad y música en una experiencia única, tanto para los estudiantes como para la comunidad en general.

Resumen de privacidad

Esta web utiliza cookies para que podamos ofrecerte la mejor experiencia de usuario posible. La información de las cookies se almacena en tu navegador y realiza funciones tales como reconocerte cuando vuelves a nuestra web o ayudar a nuestro equipo a comprender qué secciones de la web encuentras más interesantes y útiles.

Este sitio está registrado en wpml.org como sitio de desarrollo. Cambia a una clave de sitio de producción en remove this banner.